Back
Акцент на синий
Украина. Черкассы
88м2
2022 yr.
Михайловская Татьяна. Kleverc
Дизайн интерьера современного дома
Акцент на синий
Дизайн интерьера современного дома в Черкассах заключался в создании изысканного пространства в современном стиле с классическими нотками и акцентом на насыщенный синий цвет. Пожелание клиента, чтобы интерьер был светлым, стильным и с яркими деталями. Все материалы должны быть практичны, износостойки и эффектны.
Исходные данные проекта:
Двухэтажный дом.
Состояние: новое, после застройщика.
Срок разработки проекта: нормальный.




Задачи для проектирования
Разработать дизайн первого этажа частного дома.
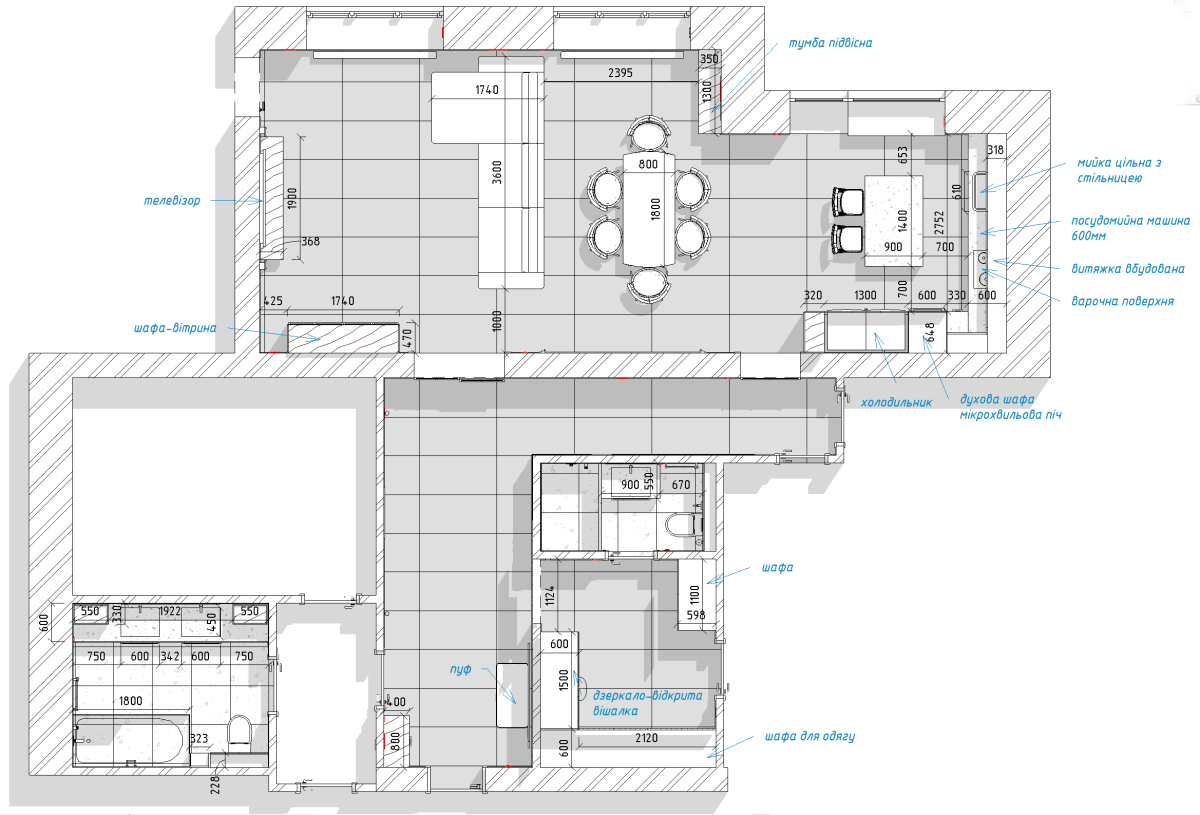
Разработать интерьер кухни-гостиной, включающей в себя кухонную зону, столовую и зону отдыха.
Разработать интерьер коридора.
Разработать интерьер гардеробной комнаты.
Разработать интерьер ванной комнаты.
Разработать интерьер санузла.
Планировка.
Частное здание строилось по индивидуальному проекту, в котором учитывались все пожелания заказчика, поэтому в этом доме перепланировка не проводилась.
Войдя в дом, мы попадаем в прихожую, где размещается удобная банкетка и большое зеркало. От входа с правой стороны находится большая гардеробная комната, из которой есть вход в санузел. С левой стороны от входной двери находится вход в зону со спальней и большой ванной. Прямо по коридору мы можем видеть большой проход в кухню-гостиную, закрывающуюся раздвижными дверями. Двигаясь по коридору на право мы попадаем и в зону хозяйских помещений. Планировка дома достаточно просторная и логичная, каждая зона имеет свое место и функцию.
Стиль интерьера и цветовая гамма.
Дизайн интерьера современного дома Черкассы выполнен в современном стиле с элементами классики и ар-деко. Классические элементы узнаются в лаконичной лепнине, карнизах, формах мебели. Театральность и эффектность ар-деко бесспорно присутствуют в цветовой гамме, украшении стен и декоративных панно, а также в мелких мебельных деталях. Интерьер в целом светлый за счет сочетания холодных оттенков с ярким теплым и насыщенным цветом дерева создается гармоничный, свежий, но не холодный интерьер. Теплые кофейные оттенки мебели и покраски стен в коридоре придают интерьеру камерность и глубину.
Отделочные материалы
Для отделки интерьера дома используются современные материалы, доступные на рынке Украины.
Для пола используется матовая плитка большого формата с имитацией серого мрамора. Для стен – краска светлого серого и кофейного цвета, на стенах также используются панно из гипсовых панелей и панелей из ДСП. Зонально используются молдинг для декорирования стены. Потолок – гипсокартон. Мебель изготавливается на заказ из современных мебельных материалов.
Мебель и предметы интерьера
Большая часть мебели в проекте изготавливается под заказ по индивидуальным чертежам, готовые элементы такие как мягкая мебель, стулья, стол, банкетка приобретаются отдельно согласно спецификации к проекту.
Источник света и сценарии освещения.
В доме используются три сценария освещения:
Общее освещение представлено встроенным точечным светильником и накладными светильниками.
Подвесные светильники над столом на кухне, торшер, подсветка рабочей поверхности, подсветка зеркала в ванной комнате.
Декоративное освещение: скрытые подсветки на потолке и мебели, декоративные стены.
Текстиль и декор
Декор в интерьере современного дома Черкассы включает в себя большие панно на стенах, картину в коридоре, карнизы и молдинги, зеркало в коридоре, подушки на диване, структурные гардины теплых отрезков в гостиной и рельефные фасады на мебели.
Дизайн интерьера дома Черкассы: Срок разработки дизайн-проекта 3 месяца.