Назад
Акцент - лаконичность и сдержанность
Украина. Черкассы ул. Яблунева
215м2
2020 г.
Дизайн и визуализация Kleverc
Акцент - лаконичность и сдержанность
Дизайн интерьера коттеджа Черкассы заключался в создании современного дома для большой семьи. Интерьер должен быть стильным и сдержанным, но в то же время находится в нем должно быть комфортно. Так же большая роль отводится практичности интерьера - это включает в себя износостойкость всех материалов и их стойкость к различным загрязнениям, а так же планировка и конфигурация мебели, которая позволяет легко делать уборку автоматическими средствами.
Исходные данные проекта:
Помещение: двухэтажное здание.
Состояние: новое, после строителей
Сроки исполнения: нормальные.
Задачи для проектирования
Разработать современный дизайн интерьера коттеджа.
Разработать интерьер основной комнаты, которая включает кухню и гостиную.
Разработать интерьер гостевой спальни.
Разработать интерьер санузла.
Разработать интерьер коридора.
Разработать интерьер кабинета.
Дизайн интерьера дома коттеджа должен быть сдержанным, максимально не нагромождённым, но очень уютным.


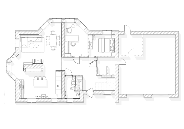
Планировка
Планировка дома разработана таким образом, что на 215 м2, располагается все необходимое для комфортного проживания большой семьи, а также предусмотрена отдельная спальня для гостей.
На первом этаже, располагается холл с лестницей и шкафом для верхней одежды и обуви. Лестница располагается сразу у входной двери. Она спроектирована таким образом, что б эксплуатации была удобная, безопасная и конечно стильная и современная. Дальше находится просторный коридор, с которого можно попасть в гостиную, также есть двери в кабинет, гостевую спальню, санузел и выход в гараж. С коридора хорошо просматривается каминная зона. Войдя в гостиную, по центру мы видим каминную зону, слева от камина кухню, справа – гостиную и столовую зону. С гостиной ведет дверь в внутренний двор через большую крытую террасу. Таким образом, мы видим что все помещения на первом этаже расположены очень удобно и логично.




Стиль интерьера и цветовая гамма.
Дизайн интерьера коттеджа Черкассы выполнен очень дозированной современной классике. В основном выраженный стиль дома – минимализм, он присутствует в лаконичной отделке, текстиле, в минимальном количестве не нужного декора, в функциональной мебели. Классические элементы, такие как декоративное освещение, элементы фасадов, и некоторые декоративные отделочные материалы, вносят свои акценты и вместе с аскетичным минимализмом, создают потрясающий стиль интерьера коттеджа.
Цветовая гамма интерьера коттеджа Черкассы - очень мягкая, она включает много оттенков кофейного, серого, бежевого цветов. В качестве единичного цветового акцента используются изумрудные фасады на кухне, которые просматриваются с гостиной. Белые двери и светлый пол делает интерьер свежим и воздушным. Все цвета и текстуры в интерьере очень благородные и максимально соответствуют общей концепции.
Отделочные материалы
Для отделки интерьера коттеджа используются современные материалы доступные на рынке Украины. Как так по первому этажу, размещается теплый пол, то весь пол отделан в керамограните большого формата, это позволяет создать однородное покрытие с минимальным количеством стыков. Плитка используется 2 цветов, серого и серо-бежевого. Плитка выбрана сатиновая, имитирующая текстуру мрамора, благодаря текстуре, цвету и фактуре пол получился не маркий, не скользкий, и легко моется. Для отделки стен используется в основном покраска и плитка керамогранит. В коридоре – покраска и плитка, в гостиной используются декоративные панели под покраску с вставками графитового стекла. Потолок в некоторых зонах выкрашен в цвет стен, это позволяет зрительно приподнять потолок и увеличить пространство. В санузле также используется плитка, в кабинете и гостевой спальне – покраска и декоративные обои.
Мебель и предметы интерьера
Мебель для интерьера коттеджа Черкассы разрабатывалась индивидуально, согласно общему стилю и требованиям. В холе находится большой шкаф, для верхней одежды, и подвесные тумбы для хранения обуви. В гостиной из мебели это полка под ТВ, декоративные стеллажи, по бокам каминной зоны, диван, журнальные столики, обеденный стол со стульями.
На кухне по максимум используется пространство под закрытые тумбы и шкафы. По центру кухни располагается остров, который служит одновременно и разделочным столом и обеденным столом. В кабинете и спальне мебель спроектирована, таким образом, что б учитывалась максимальная функциональность и универсальность. В основном их мебели на первом этаже мы видим аккуратные закрытые шкафы, это позволяет легко содержать дом в идеальном порядке, и не захламляется со временем, как открытые полки.
Источники света и сценарии освещения
В доме используются три сценария освещения:
Общее освещение: представлено встроенными точечными светильниками и накладными светильниками.
Функциональное: Подвесные светильники над столом и островом на кухне, бра в спальне и подвесной светильник над столом в кабинете, торшер в гостиной.
Декоративное освещение: подсветки потолка в основной комнате, подвесные светильники в санузле.
Текстиль и декор
Дизайн интерьера коттеджа Черкассы не изобилует не нужными декоративными деталями, все элементы интерьера очень продуманные и дополняют друг друга. В качестве декора выступает и освещение, и материалы, и цветовая гамма, и элементы мебели. Из чисто декоративных элементов присутствует картина у дивана и подушки на диване.
Сроки
Дизайн интерьера дома Черкассы: Срок разработки дизайн-проекта 4 месяца, срок реализации 8 месяцев, с учетом изготовление мебели под заказ.