Назад
Множество идей в пределах одной квартиры
Украина. Черкассы
55м2
2014 г.
Дизайн и визуализация Kleverc
На не большой площади этой квартиры размещается все что нужно для молодой семьи, и даже немножечко больше. Кухня разделена на 2 зоны: рабочую и гостиною, электрокамин придаст теплоты семейным вечерам. Комната разделена на спальню и кабинет, в котором вместилось дополнительное спальное место. На балконе -зона отдыха с удобными креслами. В коридоре помимо мини гардероба находится туалетный столик для хозяйки.
Задачи для проектирования
Разработать дизайн интерьера квартиры Черкассы.
Сделать перепланировку квартиры с учетом запросов и пожеланий заказчиков.
Разработать интерьер кухни с не большой столовой зоной, и гостиной зоной.
Разработать интерьер комнаты, с отдельной спальней и кабинетом.
Разработать прихожей.
Разработать интерьер ванной.





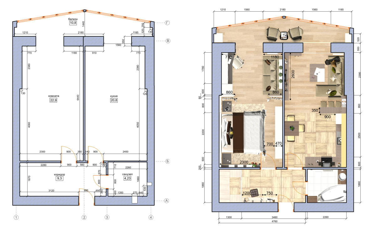
Планировка
В этом проекте квартиры Черкассы не проводилось масштабных работ по перепланированию, или переноса стен. Все работы проводились в пределах существующей планировки стен, зонирование помещений осуществлялось с помощью мебели или легкими алюминиевыми перегородками. Однако помещения имеют высокую функциональную насыщенность, и включают много разнообразных зон. Коридор делится на 3 зоны: проходная зона, зона с туалетным столиком, гардеробная зона. Кухня включает в себя зону кухни и гостиную с камином. Спальня также делится на 2 основные зоны – это спальня, которая отделена раздвижными дверями и кабинет. На балконе оборудована зона отдыха с двумя удобными креслами.
Стиль интерьера и цветовая гамма.
Дизайн интерьера квартиры Черкассы выполнен современном стиле. Цветовая гамма в коридоре и спальне – светлая с использованием темного дерева для контраста. В Кухне используются более яркие цвета, такие как цвет пыльной розы и охра. В целом интерьер довольно яркий и сочный, но тем не менее очень комфортный для жилья.
Отделочные материалы
Дизайн квартиры Черкассы используются современные материалы, согласно стилю и бюджету проекта. На полу в коридоре, кухне и ванной используется плитка, в спальне, гостиной и балконе – ламинат. Стены в основном отделы под покраску, за исключением, стены у изголовья кровати, где размещаются фотообои, и кабинета, там тоже используются обои. Ванная отделанная плиткой. Для изготовления мебели используются современные материалы МДФ и ДСП.
Мебель и предметы интерьера
Мебель в дизайне однокомнатной квартиры практически вся используется встроенная, сделанная под заказ, так как вся мебель многофункциональная и компактная. В спальне и гостиной в мебель встроенные радиаторы отопления. Радиаторы закрыты деревянными белыми панелями что делает их не заметными, и обеспечивает экологичность и высокую эффективность.
Источники света и сценарии освещения
В квартире используется 3 сценария освещения:
Общее освещение: представлено в виде встроенных точечных светильников
Функциональное: Настольные лампы возле кроватей и рабочего стола.
Декоративное: Подсветка потолка и подвесные светильники на балконе, в гостиной и кабинете.
Текстиль и декор
В качестве декоративных элементов в квартире используются картины на стенах и фотообои.
Текстиль представленный в виде римских штор на окнах и гардин у раздвижной двери, а также декоративных подушках на диване и кровати. Кроме этого в квартире есть много открытых полок где можно разместить разные аксессуары и декоративные предметы по усмотрению хозяев квартиры.
Сроки
Дизайн интерьера квартиры Черкассы: Срок разработки дизайн-проекта 1 месяц, примерный срок реализации 4 месяца, с учетом изготовление мебели под заказ.