Назад
Свет, воздушность, легкость
Украина. Черкассы
49м2
2020 г.
Дизайн и визуализация Kleverc
Дизайн интерьера однокомнатной квартиры Черкассы заключался в создании жилья для очаровательной девушки. В целом интерьер должен быть светлым, уютным, минималистичным и конечно же максимально функциональным. Также важным моментом является комфортная уборка, легкое поддержание порядка в квартире.
Исходные данные проекта:
Помещение: однокомнатная квартира.
Состояние: новое, после строителей
Сроки исполнения: нормальные.



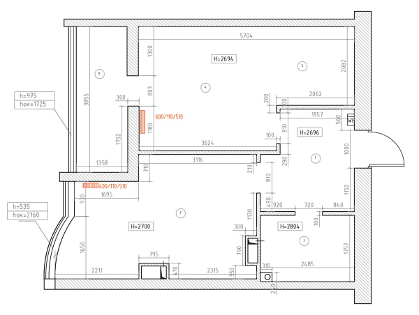
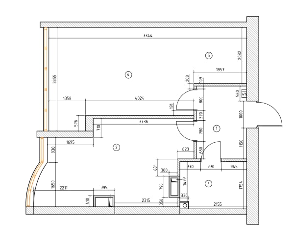
Планировка
Изначальная планировка от застройщика состояла из коридора, отдельной кухни, комнаты и санузла. В ходе проектирования не осуществлялась глобальная перепланировка, так как в целом она отвечала функциональным требованиям проекта. Были внесены лишь незначительные корректировки в межкомнатные перегородки и убрали простенок в комнате.
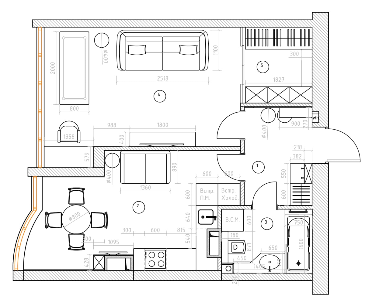
Войдя в квартиру мы видим декоративную стену с зеркалом и консолью, туда можно поставить сумку или положить ключи, а также присесть на пуф у консоли. С левой стороны от двери находится открытый и закрытый шкаф для верхней одежды и открытые полки для разных мелочей.
Из коридора ведут 3 двери: в санузел, в кухню и комнату. В санузле размещается ванна, унитаз, умывальник с подвесной тумбой и пенал со встроенной стиральной машиной и местами для хранения.
В кухне есть рабочая зона, зона отдыха с диваном и столовая зона с круглым столом. В комнате размещается рабочая зона, зона отдыха и большая гардеробная комната.





Стиль интерьера и цветовая гамма.
Дизайн интерьера однокомнатной квартиры Черкассы выполнен в минимализме. Аккуратный и светлый интерьер создается путем сочетания разных фактур и введения контрастных элементов. В целом цветовая гамма интерьера светлая, используются оттенки белого, бежевого, серого в сочетании с деревянной текстурой и акцентами красного света. Такая цветовая гамма максимально расширяет пространство и делает его лёгким и воздушным.
Отделочные материалы
Для отделки интерьера квартиры используются современные материалы доступные на рынке Украины. В коридоре, ванной и кухни используется матовая плитка большого формата с текстурой мрамора. В комнате для отделки пола используется влагостойкий ламинат. Для отделки стен используется 4 основным материала: покраска в кухне, коридоре, комнате; плитка в ванной и фартуке в кухне, ДСП панели в комнате, кухне, коридоре; и фотообои в комнате.
Мебель и предметы интерьера
Встроенная мебель для интерьера однокомнатной квартиры Черкассы разрабатывалась индивидуально, согласно общему стилю и требованиям. Готовые элементы мебели подбирались согласно эксплуатационным характеристикам и общему стилю интерьера. В коридоре находится Шкаф для верхней одежды, консоль и пуфы. В Ванной находится тумба под умывальник, шкаф над инсталляцией, пенал со стиральной машиной.
В кухне находится кухонная мебель в рабочей зоне со встроенным холодильником, посудомоечной машиной, духовой шкаф с функцией СВЧ, раковина и места для хранения. В зоне отдыха находится диван и кофейный столик. В столовой зоне размещается стол и 4 стула. В комнате размещается диван и ТВ тумба, рабочий стол, кофейные столики и мебель в гардеробной.
Источники света и сценарии освещения
В доме используются три сценария освещения:
Общее освещение: представлено встроенными точечными светильниками.
Функциональное: Подвесные светильники над столом на кухне, подвесной светильник возле дивана, настольная лампа на рабочем столе, подсветка зеркала в ванной.
Декоративное освещение: подсветки потолка в комнате, кухне и коридоре.
Текстиль и декор
Декор в интерьере однокомнатной квартире Черкассы включает в себе 2 картины большого формата на кухне, фотообои в комнате, декоративные панели. Из текстиля используются римские шторы на кухне, гардины в комнате и яркие подушки на диване.
Дизайн интерьера дома Черкассы: Срок разработки дизайн-проекта 2 месяца.