Назад
компактное жилье для парня и девушки
Украина. Киев
42м2
2019 г.
Дизайн и визуализация Kleverc
Дизайн smart квартиры в Киеве заключался в создании пространства для жилья двух молодых людей. Интерьер этой двухкомнатной однушки очень ненавязчивый и легкий, но в тоже время весьма практичный. Здесь нет сложных декоративных решений и виртуозных дизайнерских приемов, все очень лаконично и на своих местах. Такой интерьер не надоест со временем, и его легко обновить. Дизайн этой квартиры прекрасный пример того что дизайнерский ремонт может быть стильный, функциональный, но и очень бюджетный и его легко можно реализовать своими силами, без авторского надзора.
Исходные данные проекта:
Помещение: однокомнатная квартира.
Состояние: новое, после строителей
Сроки исполнения: максимально быстро.
Задачи для проектирования
Разработать дизайн smart квартиры в Киеве
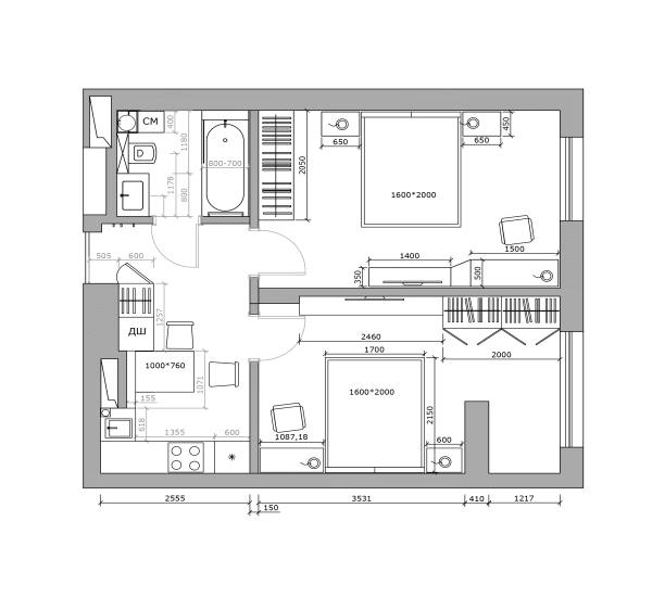
Перепланировать однокомнатную квартиру на двухкомнатную с двумя отдельными спальнями.
Разработать интерьер smart кухни с обеденной зоной.
Разработать интерьер прихожей и вместить одежный шкаф.
Разработать интерьер ванной и вместить, ванну, раковину, стиральную машину, бойлер, унитаз, корзину для белья, места для хранения порошков и бытовой химии.
Создать отдельные комнаты для жилья молодого человека и девушки.
Разработать такой дизайн проект, что б его реализация была максимально бюджетной, быстрой и простой.


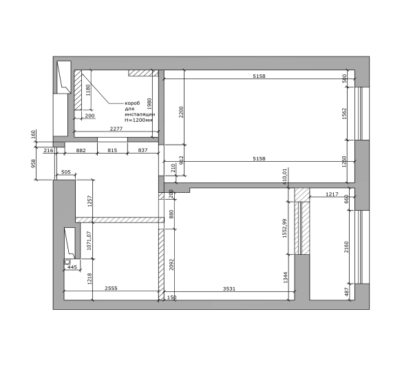
Планировка
Изначально это была однокомнатная квартира в Киеве, в доме новой постройки, несущих стен не много, поэтому больших сложностей с перепланирование не возникло. Для того что б реализовать основное требование заказчиков по перепланировки однокомнатной квартиры в двухкомнатную, нам пришлось объединить коридор с маленькой кухонной зоной, и разделить полученное пространство на 2 комнаты: спальню с окном и маленькую кухню с прихожей без окна. Что б в кухне было хоть не много естественного света, мы добавили маленькое окошко под потолком. Помещение ванной и еще одной комнаты мы оставили без изменений. Таким образом, у нас получилась двухкомнатная квартиры с маленькой кухней и прихожей.



Стиль интерьера и цветовая гамма.
Дизайн интерьера smart квартиры в Киеве выполнен в мягком минимализме. Здесь все очень лаконично и понятно. Цветовая гамма прихожей, кухни и ванной белая с деревом, это самое удачное и универсальное решение для маленького интерьера. Ведь белый цвет – визуально расширяет пространство комнаты, а дерево делает его теплым и уютным, к тому же белый цвет и дерево никогда не потеряет свою актуальность. Цветовая гамма спальни для девушки также белая с деревом, но здесь добавлен пудровый цвет и не много графичности в виде обоев на стену. В спальне для парня – в качестве дополнения к основной цветовой гамме мы использовали темно серые обои, они делаю интерьер более строгим и собранным.
Отделочные материалы
В дизайне интерьера квартиры в Киеве используются современные материалы, согласно бюджету проекта. Для того чтоб максимально расширить пространство упростить процесс реализации, мы использовали минимальное количество разных отделочных материалов. На пол кухни и прихожей мы положили одинаковую плитку под дерево, эта же плитка используется на рабочей поверхности в кухне и частично на стенах в ванной. На полу в ванной мы положили плитку с графичным узором, она визуально расширяет маленькое помещение ванной. Так же на стелах в ванной используется белая плитка кабанчик.
Основная отделка стен smart квартиры в Киеве – это покраска, она легко обновляется и не нагружает интерьер. В качестве акцентов в спальнях используются обои у изголовья кроватей. Все выбранные материалы очень доступные и практичные, что отвечает требованию к проекту.
Мебель и предметы интерьера
Мебель для интерьера однокомнатной квартиры разрабатывалась индивидуально, согласно общему стилю и требованиям. Интерьер этой квартиры очень функционально насыщенный, по этой разработке мебели приделалось большое значение. Мебель кухни и прихожей составляет цельную конструкцию, все фасады в ней без ручек и бело цвета. На кухне есть не глубокие открытые полки под дерево, а в шкафу со стороны прихожей полки для обуви. Вся техника на кухне встроенная, и компактных размеров. Антресольные шкафы создают дополнительные места для хранения. Так же на кухне размещается не большой обеденный стол и 2 стула. В прихожей, сразу у входной двери есть панель с крючками и не большими полочками для мелочей.
В ванной их мебели – это шкафчик над инсталляцией унитаза, туда можно поставить порошки и бытовую химию.
В спальне для девушки есть отдельно стоящая кровать, комод, прикроватная тумба, стол с полкой и 2 шкафа. Вся мебель выполнена в сочетании белого цвета с деревом. Мебель максимально простых конструкций и легко изготавливается. В спальне для парня находится отдельно стоящая кровать, шкаф, комод цельной конструкции со столом, прикроватные тумбы, подвесные полки и 2 пуфа, которые можно использовать как стулья на кухне. Мебель также выполнена в белом цвете с деревом, что соответствует общей концепции.
Источники света и сценарии освещения
В квартире используются 2 сценария освещения:
Общее освещение: представлено в виде встроенных точечных светильников и накладных поворотных светильников.
Функциональное: Подвесные светильники над прикроватной тумбой, бра для чтения, подсветка столов, которая размещается на подвесных полках.
Текстиль и декор
Декора в этом интерьере практически нет, так как пространство достаточно ограниченное, а мебели много. Поэтому декоративными элементами выступают отделочные материалы в виде обоев, плитки с узором, так же текстиль и некоторые предметы мебели. Из мебели к декору можно отнести кровати, пуфы и открытые полки на мебели. Текстиль на шторах в этом интерьере нейтральный в серо-бежевых тонах.
Сроки
Дизайн интерьера smart квартиры в Киеве: Срок разработки дизайн-проекта 2 недели, срок реализации 4 месяца, с учетом изготовление мебели под заказ.